` D4B Studio Architects - Notting Hill, London - Office, Residential, Retail and Extensions




 























Architectual and Interior Design for Property

Recognising the potential of a property is the key to successful investment planning and management. D4B studio supports the identification of such properties by providing consultancy services for potential buyers. Potential buyers are supported by feasibility analysis of properties even before they are purchased.

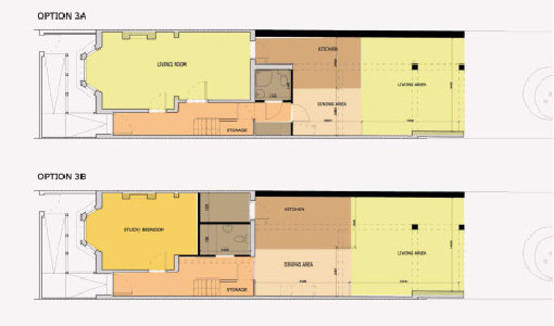
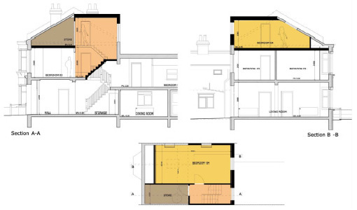
D4B studio specialises in recognising spatial and architectural potential of buildings. Thanks to our understanding of the property market we can provide architectural assessment, advice and feasibility studies for landlords and investors to maximise your capital gains and rental yields. Our expertise also covers houses of multiple occupancies.